- HOME
- 【新規募集】中間管理住宅(大正2棟)入居者を募集します
【新規募集】中間管理住宅(大正2棟)入居者を募集します
その他募集中の物件について
中間管理住宅とは
移住・定住促進を目的として、町内の空き家を整備し、希望者に賃貸する住宅です。
最長12年間(契約更新は2年毎)入居が可能で、室内や水回りを綺麗にリフォームしているため、都会から移住される方にもスムーズに安心してご利用いただける住宅となっております。
全物件共通
・インターネット回線あり(使用料自己負担)
・テレビを視聴する場合はケーブルテレビに加入する必要があります(使用料自己負担)
・敷地内の整備及び管理(草刈り等)は入居者の方に行っていただきます
入居者募集物件
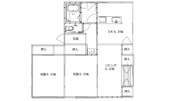
第14号 大正
所在地 | 四万十町大正338-9 |
---|---|
月額賃料 | 23,000円 |
敷金 | 46,000円(賃料2か月分) |
間取り | 3DK(洋室1室、和室2室) |
駐車場 | 別途契約要 |
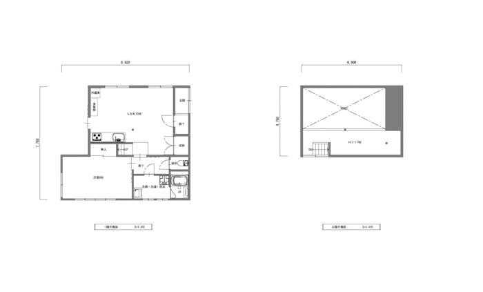
第32号 大正
所在地 | 四万十町大正181-10 |
---|---|
月額賃料 | 23,000円 |
敷金 | 46,000円(賃料2か月分) |
間取り | 1LDK+ロフト |
駐車場 | 1台可 |
内覧について
入居中の方がいらっしゃる可能性がございますので、
内覧を希望される場合は必ず事前にご連絡をお願いします。
また近隣のご迷惑になりますので、内覧の際は指定の駐車場をご利用ください。
お問い合わせ
四万十町にぎわい創出課 移住定住係(担当:小原)
TEL 0880-22-3281
入居期間
入居可能日:令和7年11月1日(土)~
最長入居期間
第14号 令和12年1月31日まで
第32号 令和15年1月31日まで
申込受付期間
受付期間:令和7年10月1日(水)~10月14日(火)
四万十町役場にぎわい創出課まで提出書類一式をご提出ください。
※ 上記期間内に申請をいただいた方の中から、選考委員会にて入居者を決定します。
応募資格
町外の方 四万十町に転入して移住しようとする者
町内の方 50歳以下2名以上の世帯を構成する者(例:申請時に49歳の妻と50歳の夫のご夫婦、40代の親と小学生の子の2人親子)
【要領内容】
第14条
中間管理住宅に入居できる者は、自治会に加入し近隣住民と積極的に交流する意思があり、その者及びその同居人に租税公課の滞納がなく、暴力団員による不当な行為の防止等に関する法律(平成3年法律第77号)第2条第6号に該当しない者で、次の各号のいずれかに該当する者とする。
1.町外から転入して四万十町に居住しようとする者
2.町外から転入し、継続して四万十町に居住する意思のある者
3.原則として、50歳以下2名以上で世帯を構成し、継続して四万十町に居住する意思のある町内在住者
※ 入居には連帯保証人が必要です。
提出書類
- 入居申請書
- 住民票の写し(入居申請者及び同居者)
- 入居申請者及び同居者の収入を証する書類※
- 入居申請者及び同居者の町税等(国民健康保険税を含む。)完納証明書
※お勤め先の源泉徴収票、もしくは所得証明書を取得ください。
所得証明書および完納証明書は各自治体により名称が異なる場合がございますので
お住まいの市区町村にお問い合わせください。
お申込み時点でご入籍されていない場合、別途婚約証明書の提出が必要となります。
詳しくは窓口までお問い合わせください。
申請書配布場所
・にぎわい創出課(西庁舎2階)、各地域振興局
・ダウンロードする場合はこちら↓

PDF形式のファイルをご覧いただく場合には、Adobe社が提供するAdobe Readerが必要です。
Adobe Readerをお持ちでない方は、バナーのリンク先からダウンロードしてください。(無料)
にぎわい創出課
〒786-8501 高知県高岡郡四万十町琴平町16番17号
TEL:0880-22-3281 Fax:0880-22-5040